DETAILS
•
BEDS - One king bed or two queen beds, One daybed or one crib
•
OCCUPANCY - 3 adults or 2 adults and 1 child in king-bedded room;
2 adults and 2 children in queen-bedded room
•
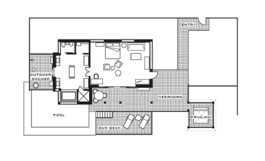
SIZE - 186 m2 (2,002 sq. ft.) including private sundeck and plunge pool.
- In the middle section of the Resort, along the pathway parallel to the shoreline below
•
BATHROOM - One full bathroom
•
VIEWS - Partial Indian Ocean and lush tropical foliage
•
UNIQUE FEATURES - Infinity edge pool
AMENITIES
BED & BATH
•
Down duvets and pillows
•
Indoor/outdoor showers
•
Deep soaking tub
•
Private WC with bidet
•
Walk-in closet/dressing area
•
Hypoallergenic bedding on request
•
Hair dryer
•
Plush bathrobes and slippers
•
Powder room (only in Suites)
•
Natura Bissé amenities
•
Double vanity sinks
•
Lighted make-up/shaving mirror
ROOM FEATURES
•
Infinity-edge plunge pool
•
Hardwood deck
•
Air conditioning
•
Ocean and shoreline views
•
Reading pavilion (only in Villas)
•
Poolside sundeck with sunbeds
•
Refrigerated private bar
•
Espresso machine and tea maker
•
In-room safe, large enough for laptops
•
Two-line telephone with voicemail
•
Laundry and pressing services (fees apply)
INTERNET ACCESS
•
Complimentary premium Wi-Fi
•
Two Internet-equipped workstations located in the Resort library
ENTERTAINMENT
•
140- to 190-centimetre (55- to 75-inch) HD TVs
•
DVD/CD player on request
SERVICES & AMENITIES
•
Multilingual Concierge
•
Twice-daily housekeeping with evening turndown service
•
Outdoor pool
•
Children’s and family programs
•
Water sports pavilion
•
Fitness Centre and classes
•
Jogging trail
•
Selection of international daily newspapers available for complimentary download at Resort via online app
•
In Resort golf cart service
•
Access to Resort library
FLOOR PLAN







